Inbox Express

Thank you for your message. We will be in touch with you shortly.

Explore Our Properties

Property Description

Exceptional Location & Impeccable Renovation in the Heart of Santa Fe
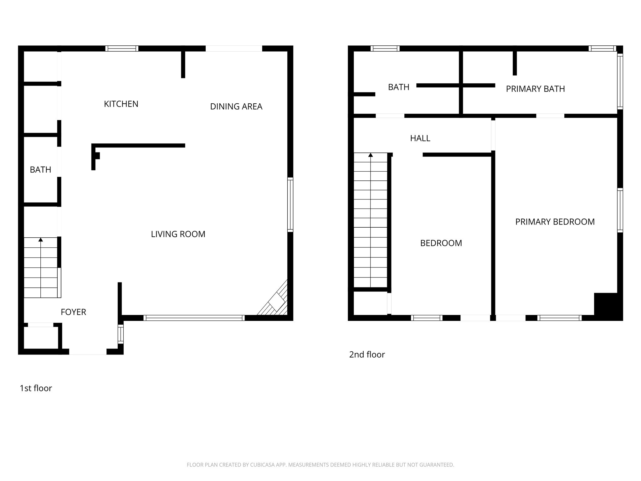
Discover a beautifully transformed end-unit residence just moments from the Santa Fe Plaza, Canyon Road, Fort Marcy Park, and miles of scenic walking trails. This light-filled, open-concept home offers effortless living, plentiful parking, and two private outdoor spaces with sweeping mountain views, including breathtaking Jemez sunset views from the upstairs balcony.
Every detail has been thoughtfully curated in this complete professional renovation. The home features engineered wood flooring, hand-troweled plaster walls throughout, custom solid wood doors, and new wood beams added to both levels for authentic Santa Fe warmth. The kitchen and half bath showcase new quartz countertops, custom cabinetry, paneled appliances, and modern fixtures. The kiva fireplace has been elegantly re-tiled, and new solar tubes illuminate the bathrooms and stairway.
Additional upgrades include a tankless water heater, mini-splits, new light fixtures, and travertine tile in the bathroom. A professionally landscaped yard with irrigation enhances both beauty and ease of maintenance. The property also features a new roof with a 25-year warranty, offering peace of mind for years to come.
With abundant windows, mountain views, and two inviting outdoor living spaces, this home offers an exceptional blend of comfort and convenience. Ideally located near downtown and Fort Marcy Park, which includes a gym with classes, pickleball courts, a pool, playground, and dog park, provides endless lifestyle opportunities. Luxury vacation rentals are permitted, offering outstanding flexibility for both owners and investors.

Overview

Property Status
Sold
MLS ID
202505178
Property Type
Condo
Year Built
1977

Features & Amenities

Total Area
1,250 Sq.Ft.
Neighborhood
Santa Fe City Northeast
Architecture Styles
Northern New Mexico, Pueblo
Stories
2
Water Source
Public
Utilites
High Speed Internet Available, Electricity Available
Pool
Community, Heated, Indoor, In Ground, None, Association
Roof
Flat, Membrane
Lot Features
Drip Irrigation/Bubblers
Heat Type
Baseboard, Ductless, Electric, Fireplace(s)
Air Conditioning
Ductless, Refrigerated
Fireplace
Kiva, Wood Burning
Appliances
Dryer, Dishwasher, Electric Cooktop, Electric Water Heater, Disposal, Microwave, Oven, Range, Refrigerator, Washer, Tankless Water Heater
Other Interior Features
Beamed Ceilings, Interior Steps
Sewer
Public Sewer
Substructure
Slab
Disability Features
Not ADA Compliant
HOA Amenities
Clubhouse, Laundry, Management, Pool, Recreation Facilities, Storage, Cable TV
Security Features
Dead Bolt(s), Heat Detector, Smoke Detector(s), Surveillance System, Security Guard
Elementary School
Carlos Gilbert
Middle School
Milagro
High School
Santa Fe
Price Upon Request

Downloads

320 Artist Road 92

Schedule a Tour

We would love to help you see this beautiful home! As a full-service brokerage, we can help you tour. Please submit an offer, and answer questions about the buying process.

Thank you

for your interest in 320 Artist Road 92, Santa Fe, NM 87501

320 Artist Road 92
Navigate
Santa Fe City Northeast

Explore Santa Fe City Northeast

A location desired for its mix of peaceful living and close-in convenience all within the city limits.

read more

I'm Interested In

320 Artist Road 92

Featured Listings

browse similar listings

Browse our exclusive listings and find your special Santa Fe home today!

 

  • 16 Hacienda Rincon For Sale

    $5,995,000

    16 Hacienda Rincon, Santa Fe, NM 87506

    • 6 Beds
    • 9 Baths
    • 10,300 Sq.Ft.
  • 515-519 Camino Del Monte Sol For Sale

    $4,950,000

    515-519 Camino Del Monte Sol, Santa Fe, NM 87505

    • 9 Beds
    • 3 Baths
    • 6,512 Sq.Ft.
  • 1223 La Rambla 27 and 28 For Sale

    $3,450,000

    1223 La Rambla, Santa Fe, NM 87505

    • 4 Beds
    • 5 Baths
    • 5,782 Sq.Ft.
  • 95 Lodge Trail For Sale

    $3,300,000

    95 Lodge Trail, Santa Fe, NM 87506

    • 3 Beds
    • 6 Baths
    • 4,271 Sq.Ft.
  • 19 Painted Horse For Sale

    $2,750,000

    19 Painted Horse, Santa Fe, NM 87506

    • 3 Beds
    • 4 Baths
    • 4,185 Sq.Ft.
  • 755 Ridge Canyon Road Pending

    $2,495,000

    755 Ridge Canyon Road, Santa Fe, NM 87506

    • 3 Beds
    • 5 Baths
    • 3,510 Sq.Ft.
  • 1057 Camino Manana For Sale

    $2,450,000

    1057 Camino Manana, Santa Fe, NM 87501

    • 4 Beds
    • 6 Baths
    • 4,381 Sq.Ft.
  • 2 Vista Del Cielo For Sale

    $2,300,000

    2 Vista Del Cielo, Santa Fe, NM 87506

    • 3 Beds
    • 4 Baths
    • 2,820 Sq.Ft.
  • 333 Magdalena Road For Sale

    $2,250,000

    333 Magdalena Road, Santa Fe, NM 87501

    • 2 Beds
    • 3 Baths
    • 2,517 Sq.Ft.
  • 39 Yana Drive For Sale

    $2,250,000

    39 Yana Drive, Santa Fe, NM 87506

    • 4 Beds
    • 7 Baths
    • 5,488 Sq.Ft.
  • 722 Gonzales Road For Sale

    $1,895,000

    722 Gonzales Road, Santa Fe, NM 87501

    • 5 Beds
    • 4 Baths
    • 4,870 Sq.Ft.
  • 36 Paseo Aragon For Sale

    $1,875,000

    36 Paseo Aragon, Santa Fe, NM 87506

    • 4 Beds
    • 4 Baths
    • 4,594 Sq.Ft.
  • 303 Cadiz Road Pending

    $1,785,000

    303 Cadiz Road, Santa Fe, NM 87505

    • 6 Beds
    • 5 Baths
    • 5,466 Sq.Ft.
  • 1221 Bishops Lodge Road Pending

    $1,750,000

    1221 Bishops Lodge Road, Santa Fe, NM 87501

    • 3 Beds
    • 3 Baths
    • 4,217 Sq.Ft.
  • 16 Plano Arbolito Pending

    $1,749,000

    16 Plano Arbolito, Santa Fe, NM 87506

    • 3 Beds
    • 4 Baths
    • 3,847 Sq.Ft.
  • 1396 Hyde Park Road For Sale

    $1,595,000

    1396 Hyde Park Road, Santa Fe, NM 87501

    • 4 Beds
    • 3 Baths
    • 3,479 Sq.Ft.
  • 3112 Vista Sandia For Sale

    $1,550,000

    3112 Vista Sandia, Santa Fe, NM 87506

    • 3 Beds
    • 3 Baths
    • 3,409 Sq.Ft.
  • 202 Galisteo 102 & 103 For Sale

    $1,495,000

    202 Galisteo, Santa Fe, NM 87501

    • 3,117 Sq.Ft.
  • 414 Camino Delora 2 For Sale

    $1,495,000

    414 Camino Delora 2, Santa Fe, NM 87505

    • 4 Beds
    • 4 Baths
    • 3,833 Sq.Ft.
  • 57 A Southfork A For Sale

    $1,495,000

    57 A Southfork, Santa Fe, NM 87508

    • 4 Beds
    • 3 Baths
    • 3,751 Sq.Ft.
  • 220 Rodriguez Pending

    $1,490,000

    220 Rodriguez, Santa Fe, NM 87501

    • 2 Beds
    • 2 Baths
    • 1,960 Sq.Ft.
  • 5 Columbine Lane For Sale

    $1,425,000

    5 Columbine Lane, Santa Fe, NM 87506

    • 3 Beds
    • 3 Baths
    • 2,504 Sq.Ft.
  • 3356 Paseo Segunda For Sale

    $1,350,000

    3356 Paseo Segunda, Santa Fe, NM 87501

    • 1 Bed
    • 2 Baths
    • 3,122 Sq.Ft.
  • 419 E Palace Avenue A and B For Sale

    $1,250,000

    419 E Palace Avenue A and B, Santa Fe, NM 87501

    • 3,419 Sq.Ft.
  • 19B Paseo Nopal For Sale

    $1,200,000

    19B Paseo Nopal, Santa Fe, NM 87507

    • 4 Beds
    • 4 Baths
    • 3,529 Sq.Ft.
  • 209 Williams Street For Sale

    $1,150,000

    209 Williams Street, Santa Fe, NM 87501

    • 5 Beds
    • 3 Baths
    • 3,038 Sq.Ft.
  • 2601 Hyde Park Road For Sale

    $1,000,000

    2601 Hyde Park Road, Santa Fe, NM 87501

    • 3 Beds
    • 4 Baths
    • 2,703 Sq.Ft.
  • 31 Camino Botanica Pending

    $920,000

    31 Camino Botanica, Santa Fe, NM 87507

    • 3 Beds
    • 3 Baths
    • 2,223 Sq.Ft.
  • 624 Galisteo 30 Pending

    $795,000

    624 Galisteo 30, Santa Fe, NM 87505

    • 2 Beds
    • 2 Baths
    • 1,388 Sq.Ft.
  • 637 Alto Street A For Sale

    $795,000

    637 Alto Street A, Santa Fe, NM 87501

    • 2 Beds
    • 2 Baths
    • 2,199 Sq.Ft.
  • 102 Sierra Azul Pending

    $750,000

    102 Sierra Azul, Santa Fe, NM 87507

    • 3 Beds
    • 3 Baths
    • 1,786 Sq.Ft.
  • 1428 Monterey Pending

    $749,000

    1428 Monterey, Santa Fe, NM 87505

    • 3 Beds
    • 3 Baths
    • 1,895 Sq.Ft.
  • 27 Lodge Circle For Sale

    $610,000

    27 Lodge Circle, Santa Fe, NM 87506

  • 122 Buena Vista For Sale

    $515,000

    122 W Buena Vista, Santa Fe, NM 87505

    • 1 Bed
    • 1 Bath
    • 713 Sq.Ft.
  • 601 W San Mateo 202 For Sale

    $325,000

    601 W San Mateo 202, Santa Fe, NM 87505

    • 2 Beds
    • 2 Baths
    • 825 Sq.Ft.
  • 285 La Cueva For Sale

    $299,000

    285 La Cueva, Glorieta, NM 87535

  • 10A Deer Stalker For Sale

    $295,000

    10A Deer Stalker, Santa Fe, NM 87506

  • 19 Sundance Ridge For Sale

    $275,000

    19 Sundance Ridge Circle, Santa Fe, NM 87506

  • 20 Hacienda Caballero For Sale

    $250,000

    20 Hacienda Caballero, Santa Fe, NM 87506

  • 2928 Aspen View, Lot 177 For Sale

    $225,000

    2928 Aspen View, Lot 177, Santa Fe, NM 87506

  • 3505 and 3510 Gaia Way For Sale

    $199,000

    3505 and 3510 Gaia Way, Santa Fe, NM 87501

  • 1109 S Summit Ridge For Sale

    $135,000

    1109 S Summit Ridge, Santa Fe, NM 87501

View All

Never Miss the Right Opportunity

Set Up a Personalized Saved Search